INFO
BACK
Pasotel
Central Valley, California
Architecture, Interior
A hotel in wine country...
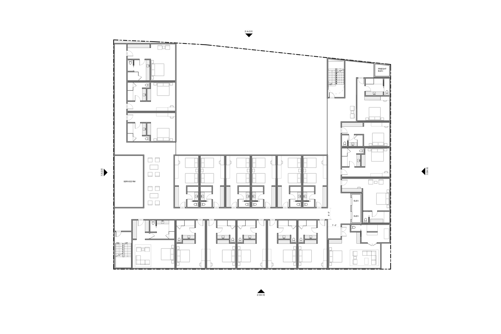
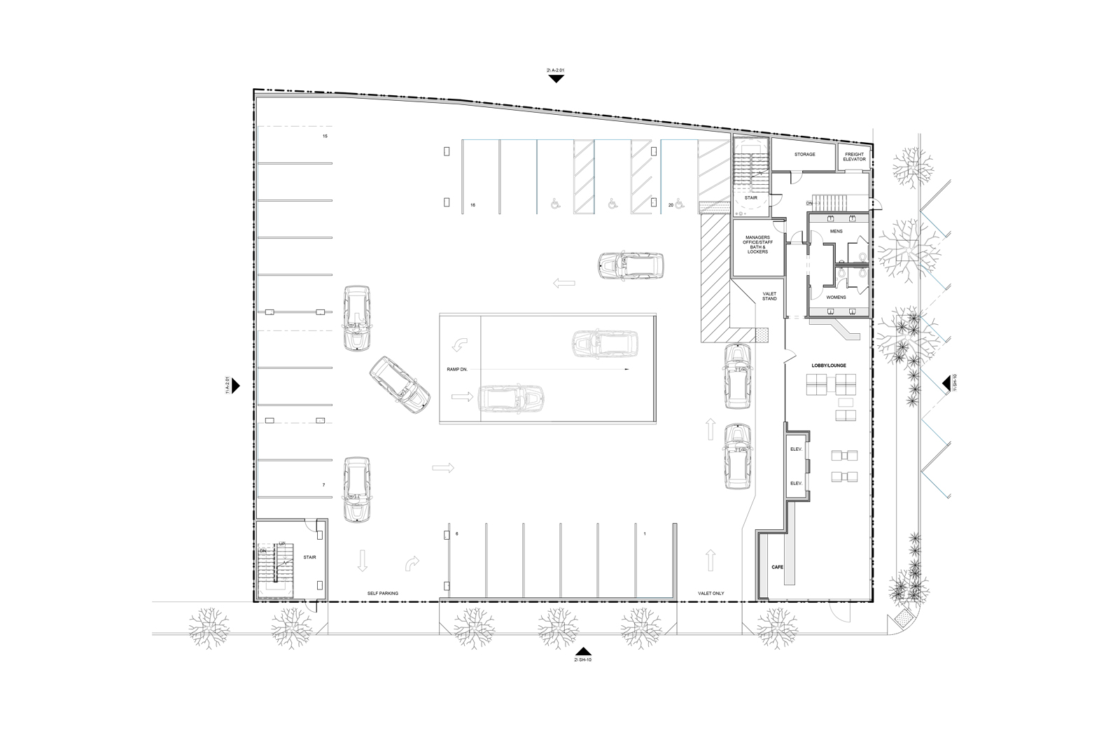
drawings